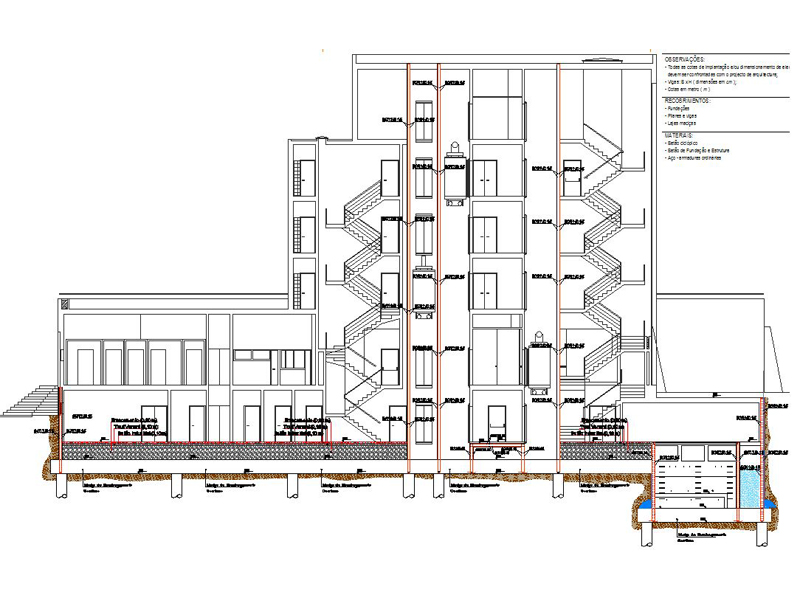
Projecto de Especialidades do Hotel Belalmansor ***

Edifícios



Descrição do Projeto

Nome do Projeto

Projecto de Especialidades do Hotel Belalmansor ***

Cliente

HOTEL BELALMANSOR Lda

Local

Samora Correia

Data de Início

01 Março 2006

Valor do Investimento

3.000.000,00 €

Prazo

9 meses

Voltar aos Projectos